Fall 2023

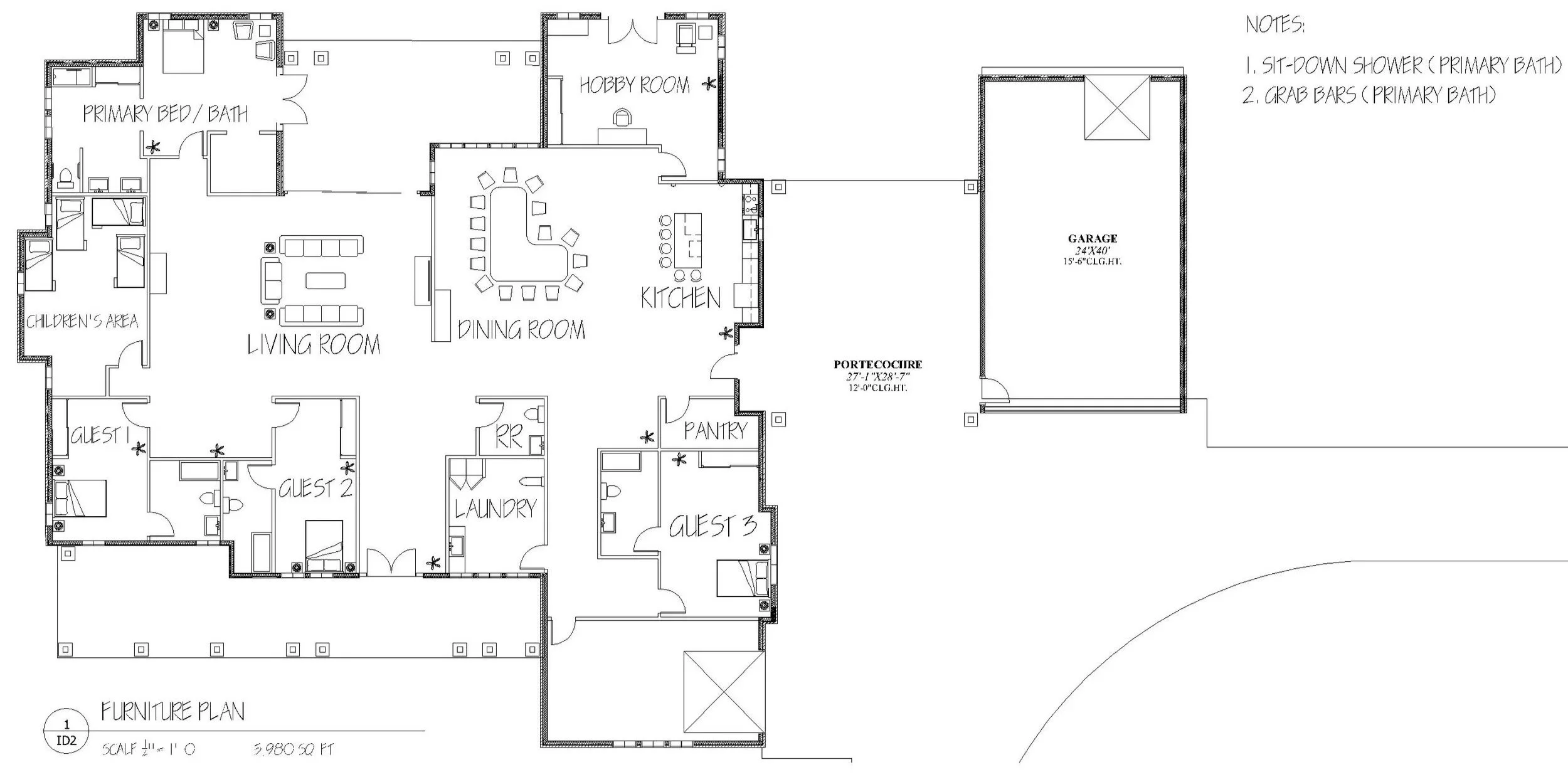
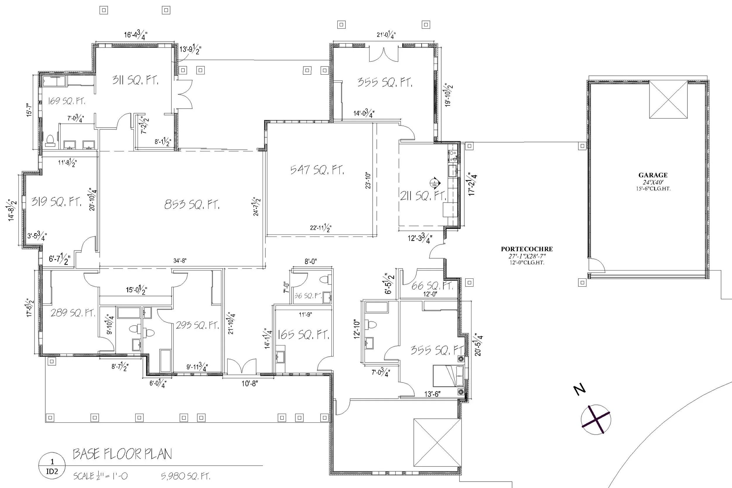
The Payne Residence project centers on creating an accessible family home in the Texas Hill Country that blends comfort, safety, and inclusivity. The design emphasizes universal design principles such as threshold-free entries, lever handles, and accessible kitchen layouts to ensure ease of use for all ages and abilities. Spaces like the open-concept living room and primary suite foster family connection and relaxation, while guest and children’s quarters provide privacy and independence. A balanced color palette of light and dark tones enhances visibility and warmth, and the hobby room supports creativity and leisure. The project’s overall goal is to deliver a timeless, welcoming environment where family and guests can thrive together.

Prototypical Sketches

Bubble Diagram

Block Plan

Kitchen

Primary Suite

Primary Suite Bathroom

Hobby Room